Objektart
Adresse
Objektdaten
Informationen
Ausstattung
Details
In Messel erwartet Sie in naturnaher Umgebung dieses wunderschöne, freistehende Haus mit 230 m² Wohnfläche auf einem 400 m² großen Grundstück, in Feldrandlage mit Süd-Ausrichtung. Das Haus verfügt zusätzlich über eine Einliegerwohnung mit separatem Eingang.
Bei dem Haus handelt es sich um einen Massivbau. Das Haus verfügt über eine moderne und hochwertige Ausstattung und ist in einem sehr guten, gepflegten Zustand. Es gibt keinerlei Instandhaltungsstau.
Der großzügige und moderne Schnitt des Hauses, der Garten und die große Terrasse mit Blick in die Natur, werden Ihnen gefallen.
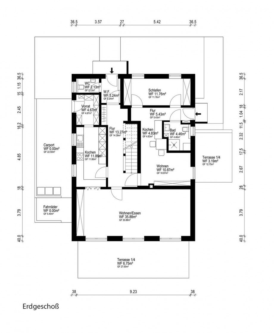
Ihnen und Ihrer Familie steht ein lichtdurchfluteter, 35 m² großer, Wohn-Essbereich und separate Küche mit angegliedertem Abstell-/Vorratsraum zur Verfügung.
Im Erdgeschoß befindet sich auch die 37 m² große Einliegerwohnung, die zu den restlichen Räumen im EG geöffnet werden kann.
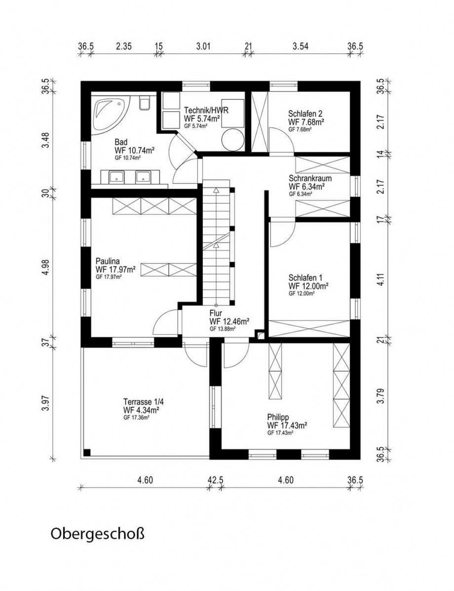
Im Obergeschoß stehen Ihnen 4 Schlafzimmer, ein geräumiges Tageslicht-Bad mit Badewanne sowie eine Loggia zur Verfügung.
Das Dachgeschoss verfügt über ein weiteres, großzügiges Zimmer und ein Tageslicht-Bad mit integrierter Sauna.
Im Dachgeschoss finden Sie zusätzlich noch weitere Abstellflächen als Kellerersatz.
Das Außenmodul der Wärmepumpe wurde 2024 erneuert.
Das Haus verfügt nicht über einen Keller.
- Wärmepumpe und Photovoltaikanlage (10 kWp)
- Fußbodenheizung
- Einbauküche
- Tageslicht-Bad mit Badewanne
- Tageslicht-Bad mit Dusche
- Tageslicht-Bad mit Dusche und integrierter Sauna
- 4 Toiletten
- Sauna
- Innenkamin vorbereitet
- Einliegerwohnung mit separatem Eingang
- große Terrasse im EG
- Loggia im OG
- Carport
- Wallbox
- 2 PKW Außenstellplätze
Messel ist eine Gemeinde nordöstlich von Darmstadt und grenzt im Norden an die Städte Dreieich, Rödermark und Eppertshausen, im Osten an die Gemeinde Münster und Stadt Dieburg, im Süden an die Gemeinde Groß-Zimmern.
In Messel befindet sich die Fossilienfundstätte Grube Messel, die von der UNESCO 1995 zum UNESCO-Welterbe erklärt wurde sowie angrenzende Naturschutzgebiete, die zur Erholung dienen.
Messel bietet ein vielfältiges Freizeitangebot in über 20 Vereinen (z.B. Turnverein, Tennis, Reiterhof). Für Kinder stehen Kinder-Krippen und Kindertagesstätten sowie eine Grundschule zur Verfügung. Busse bringen die Kinder zu weiterführenden Schulen in Darmstadt.
Durch den ÖPNV erreicht man mit dem Bus Darmstadt und durch den nahe gelegenen Bahnhof das gesamte Rhein-Main-Gebiet.
Der Bahnhof Messel liegt im Ortsteil Grube Messel direkt an der Main-Rhein-Bahn (Aschaffenburg - Darmstadt - Mainz -Wiesbaden). Der Bahnhof ist über einen kombinierten Fuß- und Radfahrweg von der Gemeinde zu erreichen. Es bestehen Park-Ride-Parkplätze.
Die Autobahn A661 ist in ca. 10 Autominuten zu erreichen, die A5 ist ca. 15 Autominuten entfernt.
Mit dem Auto erreichen Sie in ca. 20 Minuten die Innenstadt von Darmstadt und in ca. 30 Minuten den Flughafen Frankfurt.
Bildhinweis:
Für einen erweiterten Blickwinkel der Raumansicht werden Innenräume mit einem Weitwinkelobjektiv fotografiert. Somit können die Räume größer wirken, als sie real sind.
Haftung:
Bitte beachten Sie, dass alle Angaben und von uns weitergegebenen Objektinformationen, Unterlagen, Pläne etc. vom Verkäufer bzw. Vermieter stammen. Eine Haftung für die Richtigkeit oder Vollständigkeit der Angaben und Objektinformationen übernehmen wir daher nicht. Es obliegt daher unseren Interessenten/Kunden, die darin enthaltenen Objektinformationen und Angaben auf ihre Richtigkeit hin zu überprüfen. Alle Immobilienangebote sind freibleibend und vorbehaltlich Irrtümer, Zwischenverkauf- und Vermietung oder sonstiger Zwischenverwertung.
Provisionshinweis:
Die Käufer-Provision beträgt 2,975 % vom Kaufpreis inkl. MwSt. Die Käufer-Provision ist verdient und fällig mit notarieller Beurkundung. Der Immobilienmakler hat einen provisionspflichtigen Maklervertrag in gleicher Höhe mit dem Verkäufer abgeschlossen.
sonstige Kaufnebenkosten:
Die Grunderwerbsteuer, Notar- und Grundbuchkosten sind vom Käufer zu tragen.
Ansprechpartner
Telefax: 06151 - 734 75 150
g.altmann@terrakon.de
Links
Energieausweis (Verbrauchsausweis)
27 kWh / (m²*a) Energieverbrauchskennwert
27 kWh / (m²*a) Energieverbrauchskennwert
27 kWh / (m²*a) Energieverbrauchskennwert
27 kWh / (m²*a) Energieverbrauchskennwert
27 kWh / (m²*a) Energieverbrauchskennwert Weitere Informationen
| Wesentlicher Energieträger | Luftwärmepumpe |
| Energieausweis Ausstelldatum | 2018-08-02 |
| Energieausweis gültig bis | 02.08.2028 |
| Energieausweis Jahrgang | ab dem 1.5.2014 |
| Energieausweis Werteklasse | A_PLUS |
| Energieausweis Baujahr | 2014 |
| Energieausweis Gebäudeart | Wohngebäude |
| Heizung | Fußbodenheizung |
| Befeuerung | Luft-/Wasser-Wärmepumpe |
