Objektart
Adresse
Objektdaten
Informationen
Ausstattung
Details
In Jugenheim erwartet Sie dieses sehr gepflegte Reihenmittelhaus.
Im Erdgeschoß befindet sich der helle und offen gehaltene Wohn-Ess-Bereich mit einer modernen Einbauküche. Von dort gelangen Sie auf die Terrasse, die mit einem gemütlichen Lounge-Bereich, der überdacht werden kann, zum Entspannen einlädt.
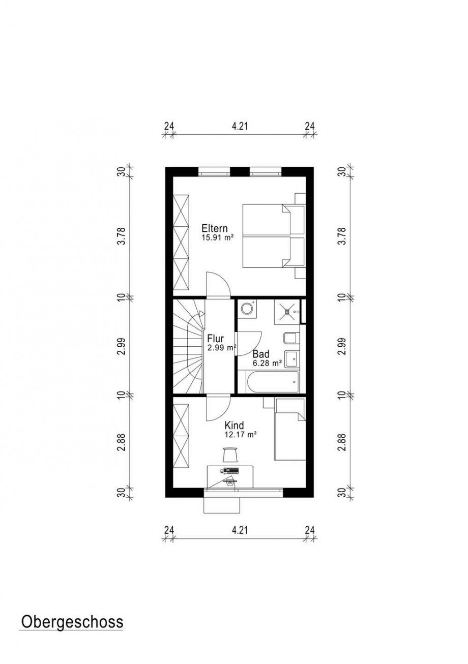
Im Obergeschoß befinden sich 2 Schlafzimmer sowie das Bad.
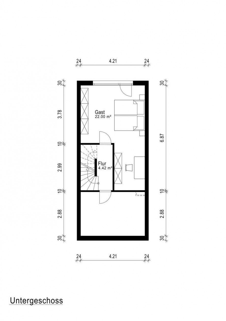
Im Untergeschoß steht Ihnen ein weiteres Kinderzimmer oder Gästebereich von ca. 22 m² zur Verfügung.
- Blockheizkraftwerk
- Moderne Einbauküche
- Gäste WC im Erdgeschoß
- Bad mit Wanne im Obergeschoß
- 1 Garage
- 1 Stellplatz
Die Gemeinde Seeheim-Jugenheim gehört zum Landkreis Darmstadt-Dieburg und liegt in der länderübergreifenden Ferienregion Bergstraße in Südhessen. Die Lage zwischen den Metropolregionen Frankfurt-Rhein-Main und Rhein-Neckar ist so zentral und trotzdem grün zugleich, dass sie auch für Arbeitnehmer aus Mannheim, Heidelberg, Darmstadt oder Frankfurt attraktiv ist. Dafür sorgen nicht zuletzt die guten Verkehrsanbindungen, die für Pendler ideal sind.
Seeheim-Jugenheim liegt an der A5 und Bundesstraße B3. Über die Straßenbahnlinien 6 und 8 erreichen Sie bequem Darmstadt und Alsbach-Hähnlein. Über Buslinien sind die umliegenden Orte, Bickenbach, Alsbach-Hähnlein und Eberstadt sehr gut erreichbar.
Seeheim-Jugenheim verfügt über eine sehr gute Infrastruktur und bietet eine hohe Wohn- und Lebensqualität.
Einkaufsmöglichkeiten, Ärzte, Banken, Freizeiteinrichtungen sowie unterschiedliche Kindergärten und Kindertagesstätten sind in Seeheim-Jugenheim und den umliegenden Orten vorhanden.
Das Schuldorf Seeheim ist zu Fuß in ca. 20 Minuten erreichbar.
Die Kreisklinik Jugenheim sowie das Orthopädie Zentrum sind fußläufig ca. 10 Minuten entfernt.
Bildhinweis:
Für einen erweiterten Blickwinkel der Raumansicht werden Innenräume mit einem Weitwinkelobjektiv fotografiert. Somit können die Räume größer wirken, als sie real sind.
Haftung:
Bitte beachten Sie, dass alle Angaben und von uns weitergegebenen Objektinformationen, Unterlagen, Pläne etc. vom Verkäufer bzw. Vermieter stammen. Eine Haftung für die Richtigkeit oder Vollständigkeit der Angaben und Objektinformationen übernehmen wir daher nicht. Es obliegt daher unseren Interessenten/Kunden, die darin enthaltenen Objektinformationen und Angaben auf ihre Richtigkeit hin zu überprüfen. Alle Immobilienangebote sind freibleibend und vorbehaltlich Irrtümer, Zwischenverkauf- und Vermietung oder sonstiger Zwischenverwertung.
Provisionshinweis:
Die Käufer-Provision beträgt 2,975 % vom Kaufpreis inkl. MwSt. Die Käufer-Provision ist verdient und fällig mit notarieller Beurkundung. Der Immobilienmakler hat einen provisionspflichtigen Maklervertrag in gleicher Höhe mit dem Verkäufer abgeschlossen.
sonstige Kaufnebenkosten:
Die Grunderwerbsteuer, Notar- und Grundbuchkosten sind vom Käufer zu tragen.
Ansprechpartner
Telefax: 06151 - 734 75 150
g.altmann@terrakon.de
Links
Energieausweis (Bedarfsausweis)
91,20 kWh / (m²*a) Endenergiebedarf
91,20 kWh / (m²*a) Endenergiebedarf
91,20 kWh / (m²*a) Endenergiebedarf
91,20 kWh / (m²*a) Endenergiebedarf
91,20 kWh / (m²*a) Endenergiebedarf Weitere Informationen
| Wesentlicher Energieträger | KWK regenerativ |
| Energieausweis Ausstelldatum | 2026-03-19 |
| Energieausweis gültig bis | 18.03.2026 |
| Energieausweis Jahrgang | ab dem 1.5.2014 |
| Energieausweis Werteklasse | C |
| Energieausweis Baujahr | 2013 |
| Energieausweis Gebäudeart | Wohngebäude |
