terrakon Immobilienberatung
Tel.: +49 (0) 6151 - 734 75 950
E-Mail: info@terrakon.de
Internet: www.terrakon.de
 

tolle 3,5 Zimmer-Wohnung mit EBK und neuem Bad

Objektübersicht

Status   Vermietet
Objektart   Dachgeschosswohnung
Adresse   65428 Rüsselsheim am Main
Objektnummer   VM230302
Baujahr   1982
Letzte Modernisierung   2023
Zimmerzahl   3
Wohnfläche (ca.)   86 m²
Kaltmiete   1.050,- €
Nebenkosten (ca.)   250,- €
Heizkosten sind in Nebenkosten enthalten   ja
Warmmiete (ca.)   1.350,- €
Etage   2
Anzahl Etagen   2
Loggia   ja
Anzahl Stellplätze   2
Stellplatzart   Freiplatz
Freiplatz   Miete 50,- € / Anzahl 2
Energieausweis   Verbrauchsausweis
Wesentlicher Energieträger   Öl
Energieverbrauchskennwert   106,52 kWh / (m²*a)
Energieausweis Ausstelldatum   2019-04-30
Energieausweis gültig bis   29.04.2029
Energieausweis Jahrgang   ab dem 1.5.2014
Energieausweis Werteklasse   C
Energieausweis Baujahr   1982
Energieausweis Gebäudeart   Wohngebäude
Unterkellert   ja
Gartennutzung   ja
Schlafzimmer   2
Badezimmer   1
Küche   Einbauküche
Bodenbelag   Fliesen
Heizung   Zentralheizung
Befeuerung   Öl
Ausstattung   GEHOBEN
Zustand   teil / vollrenoviert
bezugsfrei ab   01.04.2023

Objektbeschreibung

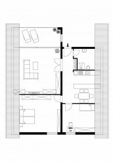
Diese frisch renovierte Wohnung im 2. Obergeschoss erwartet Sie in der Brunnenstraße in Bauschheim.
Die Wohnung besteht aus einem Wohnzimmer mit Loggia, einer offenen Küche mit Einbauküche, Tresen und Essplatz, einem nagelneuem Duschbad, einem großem Schlafzimmer und einem Kinderzimmer. Die Schrägen sind mit Einbauschränken versehen. Die Wohnung ist frisch renoviert.

Die Wohnung ist für maximal 3 Person geeignet, ideal für einen Single oder ein Pärchen.

Ausstattung

- frisch renovierte Wohnung
- nagelneues Bad
- Einbauküche mit Tresen, ohne Kühlschrank
- Loggia
- 2 Stellplätze im Hof
- Keller

Lage

Bauschheim ist der jüngste Stadtteil von Rüsselsheim.

Bauschheim liegt verkehrsgünstig zwischen den Großstädten Frankfurt, Mainz und Wiesbaden.
Der Flughafen Frankfurt/Main ist nur 20 Kilometer entfernt.
Zwei direkte Autobahnanschlüsse (A60 und A671) bieten eine schnelle Anbindung an die Nord-Süd-Achsen A3 und A5.
Mit Bus und der S-Bahn-Linie 8 oder 9 besteht eine Direktverbindung zum Flughafen Frankfurt sowie in die Zentren der Städte Frankfurt, Mainz und Wiesbaden.

Sonstiges

Vereinbaren Sie noch heute Ihren persönlichen Besichtigungstermin.
WICHTIG: IHRE ANFRAGE KANN NUR BEI ANGABE IHRER TELEFONNUMMER BEARBEITET WERDEN - VIELEN DANK!

Bildhinweis: Für einen erweiterten Blickwinkel der Raumansicht werden Innenräume mit einem Weitwinkelobjektiv fotografiert. Somit können die Räume größer wirken, als sie real sind.

Alle objektbezogenen Angaben stammen vom Eigentümer und sind überwiegend nicht geprüft. Eine Haftung kann daher leider nicht übernommen werden.

Kontaktinformation

terrakon Immobilienberatung
Bad Nauheimer Straße 4
64289 Darmstadt

Tel.: +49 (0) 6151 - 734 75 950
Fax: +49 (0) 6151 - 734 75 150
E-Mail: info@terrakon.de
Internet: www.terrakon.de

Ihr Ansprechpartner

Herr Martin Guido Altmann

Telefon: 06071 - 391 99 77
Telefax: 06071 - 391 99 79
g.altmann@terrakon.de

Flur tolle 3,5 Zimmer-Wohnung mit EBK und neuem Bad
Flur 
Bad tolle 3,5 Zimmer-Wohnung mit EBK und neuem Bad
Bad 
Bad tolle 3,5 Zimmer-Wohnung mit EBK und neuem Bad
Bad 
Wohnen tolle 3,5 Zimmer-Wohnung mit EBK und neuem Bad
Wohnen 
Wohnen tolle 3,5 Zimmer-Wohnung mit EBK und neuem Bad
Wohnen 
Wohnen tolle 3,5 Zimmer-Wohnung mit EBK und neuem Bad
Wohnen 
Loggia tolle 3,5 Zimmer-Wohnung mit EBK und neuem Bad
Loggia 
Kueche tolle 3,5 Zimmer-Wohnung mit EBK und neuem Bad
Kueche 
Essen tolle 3,5 Zimmer-Wohnung mit EBK und neuem Bad
Essen 
Essen tolle 3,5 Zimmer-Wohnung mit EBK und neuem Bad
Essen 
Eltern tolle 3,5 Zimmer-Wohnung mit EBK und neuem Bad
Eltern 
Eltern tolle 3,5 Zimmer-Wohnung mit EBK und neuem Bad
Eltern 
Kind tolle 3,5 Zimmer-Wohnung mit EBK und neuem Bad
Kind 
Grundriss tolle 3,5 Zimmer-Wohnung mit EBK und neuem Bad
Grundriss